新築戸建

福岡県糟屋郡粕屋町長者原東 4LDK

information

所在地
福岡県糟屋郡粕屋町 長者原東
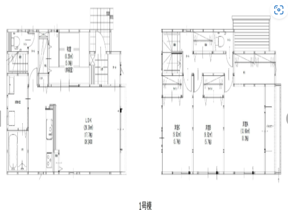
間取り
4LDK
価格
3998万円
築年月
2025/5
建物面積
33.06坪109.3m²
敷地面積
51.13坪169.05m²

ローンシミュレーション

物件価格
万円
頭金(万単位)
万円
月々の返済額
※35年金利0.41%(変動金利)での算出となります。別途諸費用が必要となります。

★糟屋郡粕屋町長者原東7丁目【新築一戸建て】全2棟 1号棟 新価格になりました!★
~令和7年11月26日 4098万円→3998万円
~令和7年11月10日 4298万円→4098万円
~令和7年10月11日 4498万円→4298万円
◆駅近くで通勤や通学が便利です!

Loading...
※位置情報は正確ではありません。住所が知りたい場合はお問合せください。

物件詳細情報

価格
3998万円
物件種別
新築戸建
間取
4LDK
所在地
福岡県糟屋郡粕屋町 長者原東
交通
JR香椎線長者原駅 徒歩12分 「魁誠高校前」バス停 徒歩7分
築年月
2025/5
新築/中古
面積
33.06坪109.3m²
計測方式
バルコニー
向き
建物階数
地上2階 
部屋階数
部屋/区画番号
総戸/区画数
2
建物構造
木造
敷地全体面積
51.13坪169.05m²
延べ床面積
33.06坪109.3m²
間取内容

地目
宅地
用途地域
一種低層
都市計画
市街化区域
地勢
土地面積
169.05m²
面積計測方式
周辺環境
校区(粕屋中央小学校 粕屋東中学校 )
設備・条件
複層ガラス、24時間換気システム、ダウンライト、電動シャッター、システムキッチン、カウンターキッチン、食器洗浄乾燥機、キッチンに窓、省エネ給湯器、電気、浴室乾燥機、追焚機能、浴室暖房、トイレ2箇所、温水洗浄便座、シャンプードレッサー、TVモニタ付きインターホン、火災報知機、ウォークインクローゼット、床下収納、全居室収納、シューズボックス、プロパンガス、上水道、下水道、側溝
物件番号
O4008
自社物
状態
※物件掲載内容と現況に相違がある場合は現況を優先と致します。

    この物件についてのお問い合わせ

    件名

    ※件名は変更できません

    お問合せ内容

    ご希望日 ※必須

    ご希望時間帯 ※必須

    お名前 ※必須

     例)鈴木一郎

    メールアドレス ※必須

     例)abcde@sample.com

    電話番号または携帯電話番号 ※必須

    例)031112222(半角数字・ハイフン不要)

    ※ご見学を希望される場合は、お電話にてご連絡を差し上げる場合がございます。

    売却のご検討

    現在、持家で売却も併せて検討している

    気になることがあれば何でもご記入ください!

    当サイトはreCAPTCHAによる保護が行われており、Googleのプライバシーポリシー利用規約が適用されます。