新築戸建

福岡県春日市白水ヶ丘 4LDK

information

所在地
福岡県春日市 白水ヶ丘
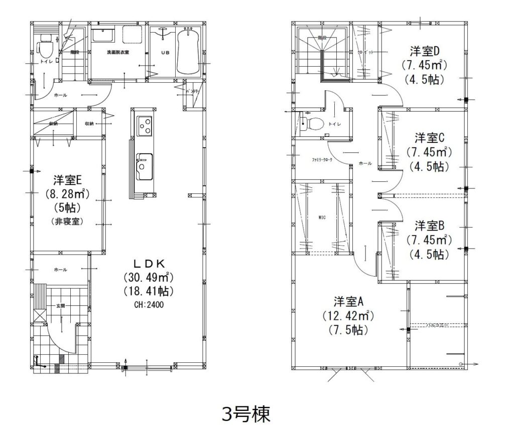
間取り
4LDK
価格
3998万円
築年月
2025/9
建物面積
33.95坪 112.2m²
敷地面積
40.69坪134.53m²

ローンシミュレーション

物件価格
万円
頭金(万単位)
万円
月々の返済額
※35年金利0.41%(変動金利)での算出となります。別途諸費用が必要となります。

★春日市下白水ヶ丘2丁目【 新築一戸建て】全3棟 3号棟 新価格になりました!★
~令和7年12月4日 4198万円→3998万円
◆快適な暮らしを彩る設備が充実しています♪

Loading...
※位置情報は正確ではありません。住所が知りたい場合はお問合せください。

物件詳細情報

価格
3998万円
物件種別
新築戸建
間取
4LDK
所在地
福岡県春日市 白水ヶ丘
交通
JR博多南線博多南駅 徒歩19分 西鉄バス「池の下」バス停 徒歩11分
築年月
2025/9
新築/中古
面積
33.95坪 112.2m²
計測方式
バルコニー
向き
建物階数
地上2階 
部屋階数
部屋/区画番号
総戸/区画数
3
建物構造
木造
敷地全体面積
40.69坪134.53m²
延べ床面積
33.95坪 112.2m²
間取内容

地目
宅地
用途地域
一種中高層
都市計画
市街化区域
地勢
土地面積
134.53m²
面積計測方式
周辺環境
校区(白水小学校 春日西中学校 )
設備・条件
都市ガス 電気 上水道 下水道 側溝 追焚機能 トイレ2箇所 温水洗浄便座 ウォークインクローゼット 床下収納 システムキッチン カウンターキッチン 食器洗浄乾燥機 シャンプードレッサー 浴室乾燥機 複層ガラス TVモニタ付きインターホン 24時間換気システム 省エネ給湯器 火災報知機 浴室暖房 シューズボックス ダウンライト キッチンに窓 電動シャッター
物件番号
E4604
自社物
状態
※物件掲載内容と現況に相違がある場合は現況を優先と致します。

    この物件についてのお問い合わせ

    件名

    ※件名は変更できません

    お問合せ内容

    ご希望日 ※必須

    ご希望時間帯 ※必須

    お名前 ※必須

     例)鈴木一郎

    メールアドレス ※必須

     例)abcde@sample.com

    電話番号または携帯電話番号 ※必須

    例)031112222(半角数字・ハイフン不要)

    ※ご見学を希望される場合は、お電話にてご連絡を差し上げる場合がございます。

    売却のご検討

    現在、持家で売却も併せて検討している

    気になることがあれば何でもご記入ください!

    当サイトはreCAPTCHAによる保護が行われており、Googleのプライバシーポリシー利用規約が適用されます。