新築戸建
福岡県糟屋郡須惠町大字上須惠 4LDK
information
- 所在地
- 福岡県糟屋郡須惠町 大字上須惠
- 間取り
- 4LDK
- 価格
- 3698万円
- 築年月
- 2025/11
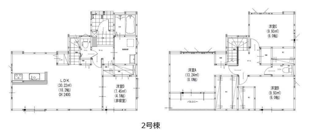
- 建物面積
- 33.98坪 112.3m²
- 敷地面積
- 63.67坪210.49m²
ローンシミュレーション
Loading...
※位置情報は正確ではありません。住所が知りたい場合はお問合せください。
物件詳細情報
- 価格
-
3698万円
- 物件種別
- 新築戸建
- 間取
-
4LDK
- 所在地
- 福岡県糟屋郡須惠町 大字上須惠
- 交通
- JR香椎線須恵中央駅 徒歩15分 「上須恵橋」バス停 徒歩4分
- 築年月
- 2025/11
- 新築/中古
- 面積
- 33.98坪 112.3m²
- 計測方式
- バルコニー
- m²
- 向き
- 建物階数
- 地上2階
- 部屋階数
- 階
- 部屋/区画番号
- 総戸/区画数
- 3
- 建物構造
- 木造
- 敷地全体面積
- 63.67坪210.49m²
- 延べ床面積
- 33.98坪 112.3m²
- 間取内容
- 地目
- 宅地
- 用途地域
- 一種低層
- 都市計画
- 非線引区域
- 地勢
- 土地面積
- 210.49m²
- 面積計測方式
- 周辺環境
-
校区( 須恵中学校 )
- 設備・条件
- プロパンガス 電気 上水道 下水道 トイレ2箇所 温水洗浄便座 ウォークインクローゼット 床下収納 システムキッチン カウンターキッチン 食器洗浄乾燥機 シャンプードレッサー 浴室乾燥機 複層ガラス TVモニタ付きインターホン 24時間換気システム 省エネ給湯器 火災報知機 シャッター(雨戸) 浴室に窓 浴室暖房 シューズボックス 押入れ ダウンライト キッチンに窓
- 物件番号
- H4281
- 自社物
- 状態
※物件掲載内容と現況に相違がある場合は現況を優先と致します。

















★糟屋郡須惠町大字上須惠【新築一戸建て】全3棟 2号棟 新価格になりました!★
~令和7年11月29日 3798万円→3698万円
◆最新の設備が充実しています♪