新築戸建
福岡県筑紫野市紫 4LDK
information
- 所在地
- 福岡県筑紫野市 紫
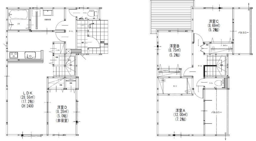
- 間取り
- 4LDK
- 価格
- 3998万円
- 築年月
- 2025/12
- 建物面積
- 31.62坪104.54m²
- 敷地面積
- 55.04坪181.96m²
ローンシミュレーション
Loading...
※位置情報は正確ではありません。住所が知りたい場合はお問合せください。
物件詳細情報
- 価格
-
3998万円
- 物件種別
- 新築戸建
- 間取
-
4LDK
- 所在地
- 福岡県筑紫野市 紫
- 交通
- 西鉄天神大牟田線朝倉街道駅 徒歩13分 西鉄バス「鬼の面」徒歩6分
- 築年月
- 2025/12
- 新築/中古
- 面積
- 31.62坪104.54m²
- 計測方式
- バルコニー
- m²
- 向き
- 建物階数
- 地上2階
- 部屋階数
- 階
- 部屋/区画番号
- 総戸/区画数
- 2
- 建物構造
- 木造
- 敷地全体面積
- 55.04坪181.96m²
- 延べ床面積
- 31.62坪104.54m²
- 間取内容
- 地目
- 宅地
- 用途地域
- 一種中高層
- 都市計画
- 市街化区域
- 地勢
- 土地面積
- 181.96m²
- 面積計測方式
- 周辺環境
-
校区(二日市東小学校 筑紫野中学校 )
- 設備・条件
- 複層ガラス、24時間換気システム、ダウンライト、電動シャッター、システムキッチン、カウンターキッチン、食器洗浄乾燥機、キッチンに窓、省エネ給湯器、電気、浴室乾燥機、追焚機能、浴室暖房、トイレ2箇所、温水洗浄便座、シャンプードレッサー、TVモニタ付きインターホン、火災報知機、ウォークインクローゼット、床下収納、玄関収納、シューズボックス、都市ガス、上水道、下水道
- 物件番号
- B40148
- 自社物
- 状態
※物件掲載内容と現況に相違がある場合は現況を優先と致します。
















★筑紫野市紫5丁目【新築一戸建て】4号棟 新価格になりました!★
~令和7年11月27日 4098万円→3998万円
◆駐車3台可能で来客時に安心ですね♪
◆駅まで徒歩13分で通勤・通学に便利ですね♪
◆小学校まで徒歩11分でお子様の通学も安心ですね♪