中古マンション
福岡県福岡市博多区千代ウェルブライト博多 1K 新着
information
- 所在地
- 福岡県福岡市博多区 千代 ウェルブライト博多
- 間取り
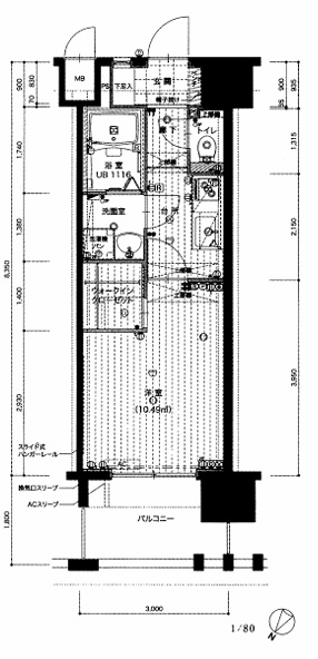
- 1K
- 価格
- 1560万円
- 築年月
- 2009/10
- 建物面積
- 7.57坪25.05m²
- 敷地面積
- 坪m²
ローンシミュレーション
Loading...
※位置情報は正確ではありません。住所が知りたい場合はお問合せください。
物件詳細情報
- 価格
-
1560万円
- 物件種別
- 中古マンション
- 間取
-
1K
- 共益費・管理費
- 30000円
- 所在地
- 福岡県福岡市博多区 千代 ウェルブライト博多
- 交通
- 徒歩4分 徒歩7分
- 築年月
- 2009/10
- 新築/中古
- 面積
- 7.57坪25.05m²
- 計測方式
- バルコニー
- 5.40m²
- 向き
- 北東
- 建物階数
- 地上13階
- 部屋階数
- 11階
- 部屋/区画番号
- 総戸/区画数
- 96
- 建物構造
- RC造
- 敷地全体面積
- 坪m²
- 延べ床面積
- 7.57坪25.05m²
- 管理形態
- 全部委託
- 間取内容
- 住宅保険料
- 年
- 修繕積立金
- 5300円
- 地目
- 用途地域
- 商業
- 周辺環境
-
校区(千代小学校 千代中学校 )
- 設備・条件
- プロパンガス システムキッチン 室内洗濯機置場 オートロック 宅配ボックス エレベーター WIC
- 物件番号
- D3199
※物件掲載内容と現況に相違がある場合は現況を優先と致します。










★福岡市博多区千代2丁目【ウェルブライト博多】令和8年2月22日 新登場しました!★
◆千代県庁口駅まで徒歩約4分の好立地!博多駅・天神エリアへもスムーズに移動可能です♪
◆単身者需要の安定した間取りで、エリア特性からも継続的な賃貸ニーズが見込めます♪
◆福岡市中心部近接エリアのため、空室リスクを抑えやすいエリア特性も魅力です♪
◆オーナーチェンジ(投資用物件につき実際に居住出来ません)
※利回り:4.6%
※年間予定賃料収入:720000円・57000円/月にて賃貸中
※写真の内容と現況が異なる場合は現況を優先します。